Заполните форму
— и мы вам перезвоним

Или напишите нам сами

Офис группы компаний Химпэк

openspejs_result.jpg

О проекте

  • Год проектирования
    2023
  • Клиент
    Химпэк
  • Площадь
    2000 м2
  • Теги
    Реализован

Хочу в таком же стиле!

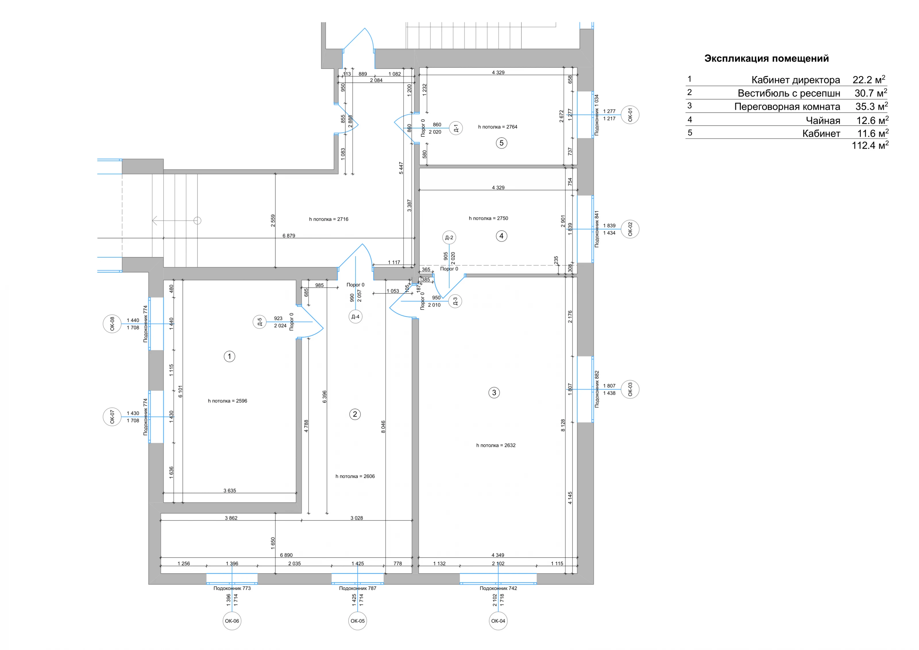
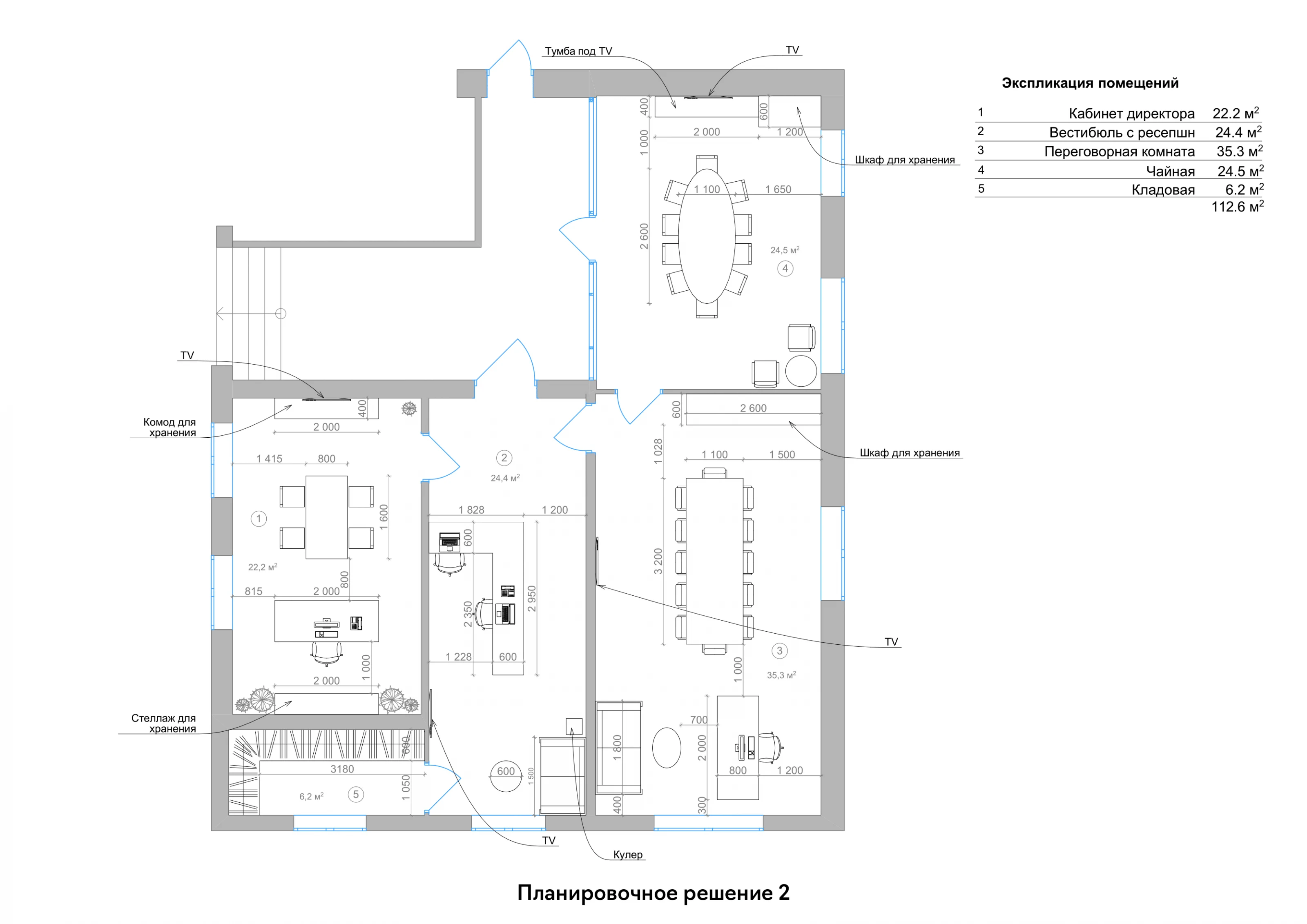
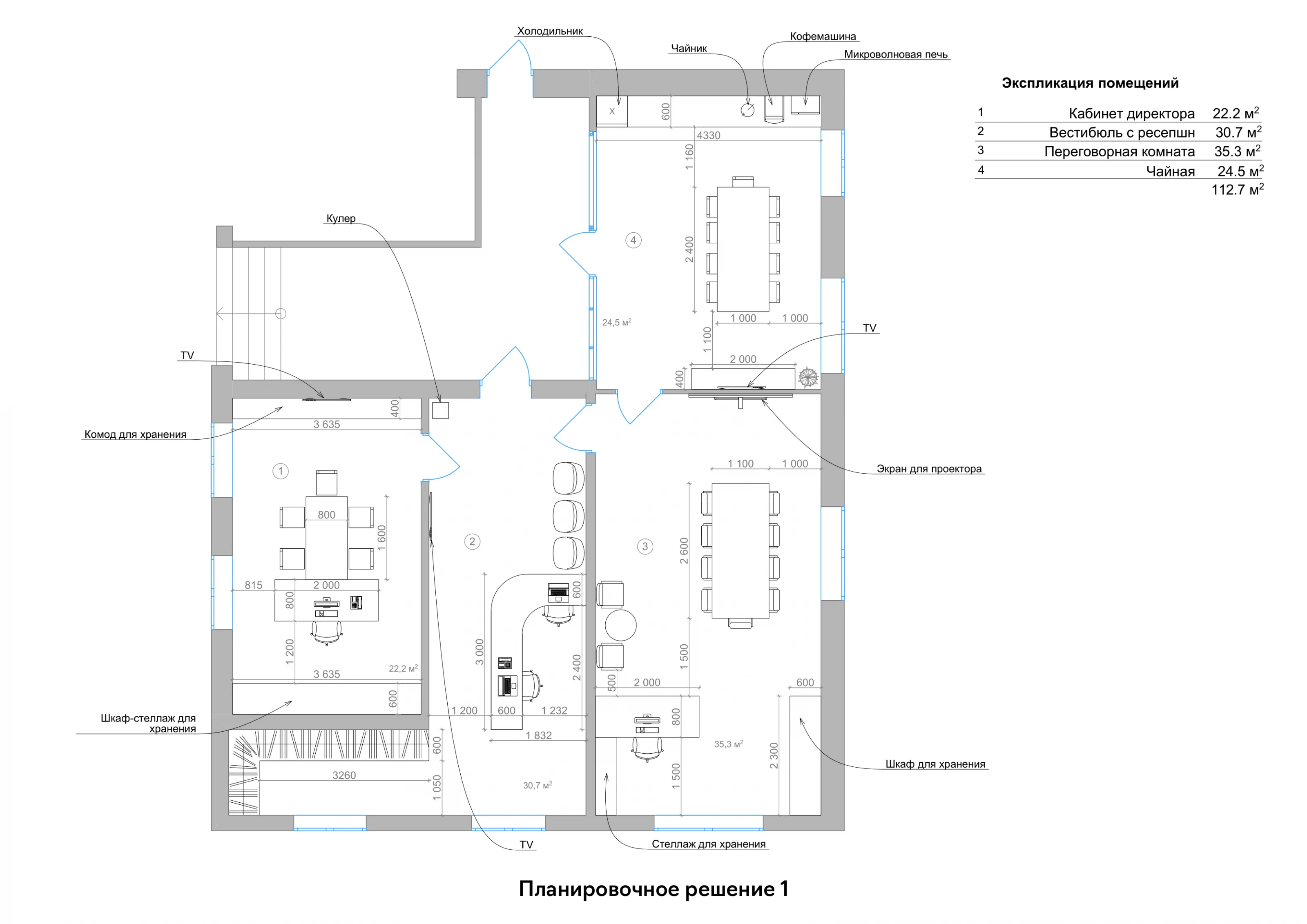
d5548__himpyek__6_planirovochnoe_reshenie_1_yetazh__-1.png d5548__himpyek___planirovochnoe_reshenie_3_yetazh__-1.png plany_himpyek-1.png plany_himpyek-3.png plany_himpyek-2.png d5548__himpyek___planirovochnoe_reshenie_2_yetazh__-1.png
Следующий кейс Rock the Cycle Санкт-Петербург
rock-4_result.jpg