Заполните форму
— и мы вам перезвоним

Или напишите нам сами

Офис компании Лебер

img_9325_kopiya_result(1).jpg

О проекте

  • Площадь
    363 м2
  • Статус
    Реализован
  • Теги
    Реализован

Хочу в таком же стиле!

Команда студии «Точка дизайна» разработала красочный интерьер офиса для компании «Лебер» – российского поставщика и производителя детских игровых комплексов. Заказчики хотели получить нескучное оформление, которое будет комфортным для сотрудников и руководства, а также подчеркнет связь с ярким и функциональным дизайном для детей. Передать характер бренда помогли акцентные детали – строгие геометрические формы и насыщенные вкрапления глубоких синих и красных цветов. Фоном для них выступили располагающие к концентрации серые и графитовые оттенки. Главными составляющими дизайн-проекта стали продуманное зонирование, комбинированные рабочие места и разнообразные световые сценарии. Работа над проектом проходила легко и быстро. ««Точка дизайна» подготовила референсы, которые стали начальным этапом работы. Увидев их, мы внесли небольшие правки и сообщили команде студии о том, что нам нравится, а что не подходит. Также очень профессионально дизайн-студия подошла к определению вкуса заказчика, использовав для этого авторский опросник» — Артем Романович Сорокин, председатель совета директоров «Лебер».

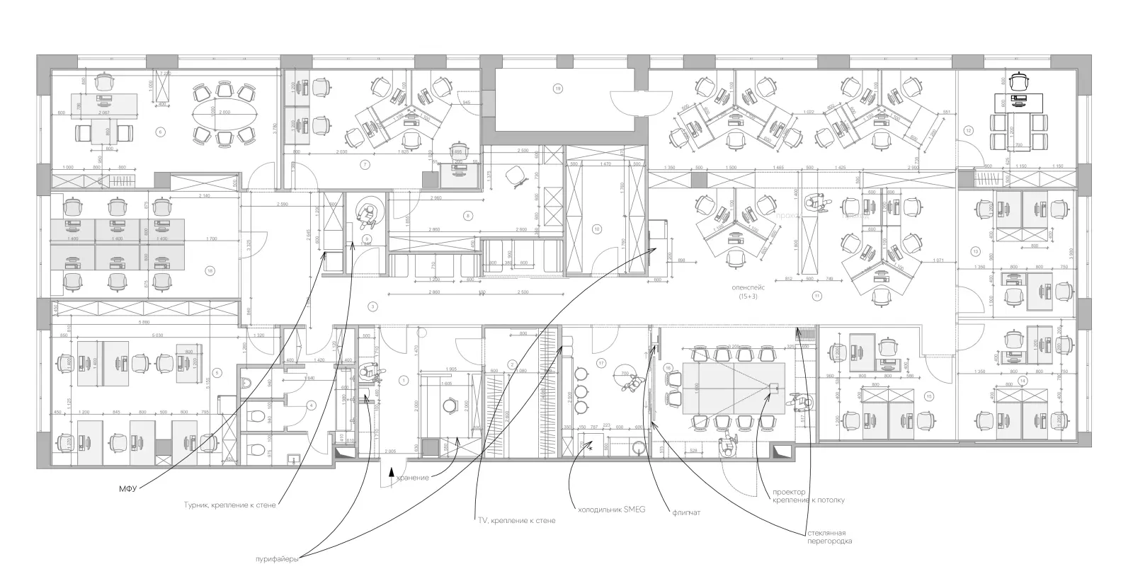
Исходная планировка объекта была довольно удачной: в огромном помещении площадью более трехсот пятидесяти метров были выделены только границы санузла. Его дизайнеры предложили расширить за счет широкого коридора, чтобы сделать более светлым и просторным. Единственным недостатком объекта были низкие потолки, характерные для всего бизнес-центра. Их арт-директор проекта Варвара Чеснокова предложила обыграть с помощью открытых коммуникаций, которые впоследствии превратились из исключительно функциональных элементов в узнаваемые детали. Идея оформить их разными цветами пришлась по душе заказчику – теперь красные и голубые тона задают интерьеру неформальное настроение, отсылая к сфере деятельности компании. Необычным приемом, который редко встречается в офисах, стало использование напольного покрытия из винила. Его фактура напоминает ковровое плетение и привносит в проект уюта, а геометричный рисунок с аккуратными спайками оживляет сдержанную палитру.

Самую освещенную часть помещения с высокими панорамными окнами занял большой опен-спейс с динамичными рабочими местами. Столы сложной формы были спроектированы на заказ и изготовлены на собственном производстве компании «Лебер»: благодаря их необычной конструкции у каждого сотрудника появилось личное пространство, в которое приятно возвращаться каждый день. Весь этот блок Марк Яворский предложил сделать трансформируемым за счет примыкающей переговорной комнаты и небольшой кухни. Их можно легко объединить с основным пространством благодаря стеклянным перегородкам в графичных рамах: при необходимости они разворачиваются и сдвигаются по одной линии, не нарушая целостности оформления. Контрастная кухня, по желанию клиента, решена в стиле лофт. Ее доминантой выступила система подвесных светильников, формирующих эффектную «волну». Обволакивающую атмосферу поддерживают покрытые черной краской Dulux стены и потолки, которые оказались безупречной базой для пары белых стульев IKEA. Компактный гарнитур с темными шкафами и необходимой бытовой техникой тоже был выполнен по авторским эскизам, а подбором декора брендов Ferm living, GK Concept и Chairo home занималась Дарья Ишкараева. В другой половине офиса расположилось крыло руководства, соседствующее с кабинетами бухгалтеров и юристов. В отличие от опен-спейса, потолки в них частично закрыты ГКЛ: так интерьер кажется более спокойным и привычным опытным работникам. Эта идея Варвары Чесноковой стала узнаваемой фишкой офиса, добавляя динамики даже самым сдержанным зонам.  

Наполнению переговорных было уделено особое внимание: в стены здесь интегрированы ниши с сидениями для отдыха, а мебель подбиралась мобильная. Абстрактная картина Олега Устинова сформировала легкую отсылку к ориентированной на детей сфере деятельности компании. Оживить строгую палитру помог контраст отделочных материалов – водостойкой краски, мягких звукопоглощающих панелей и декоративной штукатурки с имитацией бетона. Последняя также украсила входную зону с глянцевой стойкой ресепшн. Так, уже при входе в офис клиенты погружаются в деловую атмосферу и знакомятся с уникальным подходом «Лебер» к работе. Ощущение завершенности оформлению придают полотно художницы Кати Нечаевой и настольная лампа &Tradition.

Финальным штрихом проекта стала разработка световых сценариев. Они сформированы потолочными светильниками, точечными лампами над рабочими столами и настенными бра с периметральной подсветкой. Даже пожарные светильники оказались встроены в интерьер: красные линии органично вписались в визуальную концепцию и не выделяются из общей картины.  

planirovka.jpg
Следующий кейс Точка дизайна, офис на Новослободской
1_zaglavnoe__mg_0963_kopiya_result.jpg